Strategic Infill of an Underutilized Space
Rome Health prides themselves on their approach to patient-centered care, which was at the forefront of the design of the Medical Center. Being able to continue to deliver exceptional care to create a healthier community within a new state-of-the-art facility that would provide the means to do so was essential. Rome Health Medical Center, located at the hospital’s main campus in Rome, New York, is a two-story, 32,000 square foot renovation and addition infill. The vision for this project was to consolidate three outpatient practices, along with a retail pharmacy for patients to access a wide breadth of specialty care within one central location.

Expanding access
Accessibility to the Medical Center and within the space was a main focus of the project as to provide convenience for all patients receiving care. A dedicated entrance was created to the outpatient services within the Medical Center and another exterior entrance to the Retail Pharmacy was provided to create ease of access. Along with this, an elevator was added to allow patients to access the first floor of the suite, as there was no direct accessible connection between the floors of the Medical Center.



Repurposing an underutilized space
The two-story lobby was an infill addition that was previously an underutilized outdoor area beneath the third and fourth floors of the 1976 addition. From the exterior, it can be seen through expansive windows that span the façade, creating transparency to draw staff and patients through the main lobby into the outpatient suite, while also flooding the space with daylight.

The interiors of the building include earthy colors and warm finishes that will feel welcoming to all, with artwork using vibrant and energetic colors pulled from Rome Health’s branding palette. Creating a healing and comfortable environment with access to daylight for both staff and patients was crucial.



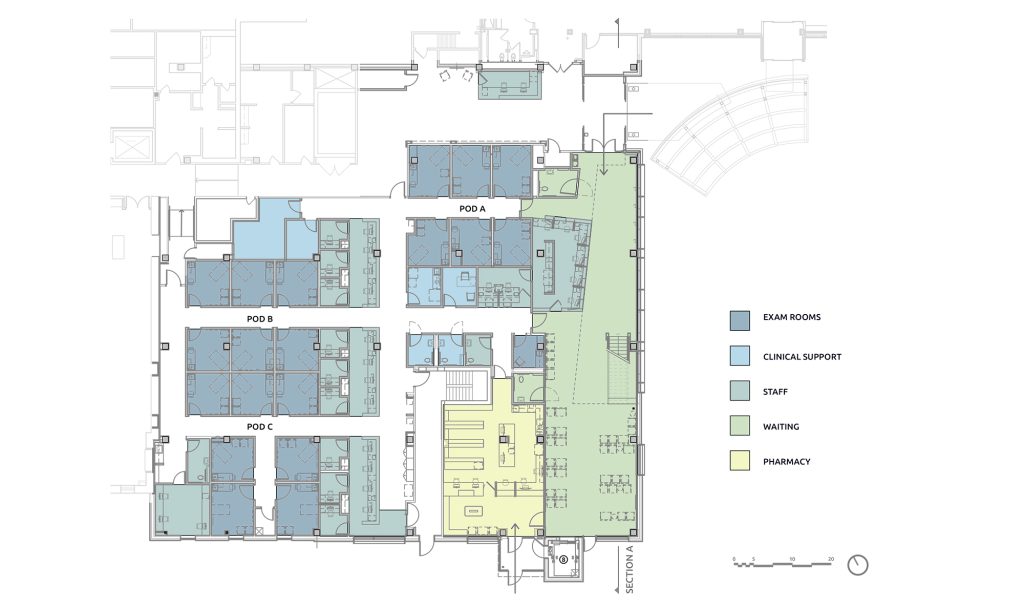
A very thoughtful design process had to occur to best utilize the space within the hospital that was available for the program. The main driver was the need for a total of forty-two exam and treatment rooms to support the practices and provide ample care for the community. Pods of Exam Rooms and Care Teams were organized with consistency throughout the suite to provide flexibility and efficient workflow for the staff and effective wayfinding for patients.



Rome Health’s mission of providing healthcare with compassion and values including innovation, safety, and excellence are all supported by the overall design of the Medical Center throughout all clinical and staff spaces.
Accessibility for patients and a feeling of trust and comfort were conceptualized and turned into a reality through collaboration, sharing of knowledge and feedback from end users. Rome Health being the main healthcare provider of the Rome and surrounding communities, now has a facility that has set the precedent of the level of the care environment provided to their patients and is excited to move forward with the momentum of the Medical Center into future projects.
